Beratung , Konzeption und Planung
Service für Agenturen
Ich biete mein Know How in jeder Leistungsphase an. Konzeption, Planung, Präsentation beim Kunden, Ausschreibung und Ausführung.
Planung, Organisation und Steuerung des ausführenden Gewerkes.
Alle Leistungsphasen sind auch seperat buchbar.
Service für Planer, Architekten und Bauherren
Sie erhalten von mir professionelle Visualisierungen, colorierte Grundrise, perspektivische Ansichten für Ihre Präsentation.
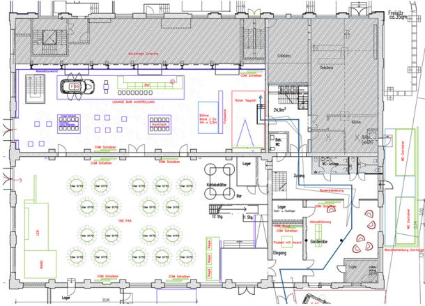
Planungen von Grundrissen und Bauplänen
Service B2B
Ich biete einen vollumfänglichen Service für Ihr Unternehmen. Sie erhalten von mir die Konzeption, Planung und bis zur fertigen Umsetzung mit Bauabnahme.
Jede Teilleistung in der Umsetzung ist auch einzeln abrufbar. Zusammenführung und Steuerung der einzelnen Gewerke.
Planung und Umsetzung B2C
Alle Leistungen, welche ich für die Businesspartner anbiete, sind auch für den Endverbraucher abrufbar.
Ich plane, visuslisiere, baue und installiere jeden Bauabschnitt entweder selbst oder mit entsprechenden Partnern.



